电气设计机电集成实验

【面向专业】

控制理论与工程、电气及其自动化、自动化、机电一体化

【所属课程】

电气设计及其自动化

【实验目标】

1)掌握智能电气设计软件的项目设计方式;

2)掌握电气及机械结合的机电集成方法。

【实验类型】基本型

【实验意义】

通过使用智能电气设计软件进行项目设计,了解现代的智能电气设计方法,掌握电气设计的流程及图纸组成,建立项目的标准化概念。通过机电一体化电气设计,建立电气和机械的协同合作观念,弥合跟机械专业方面的理论缝隙。进行此实验,能够将理论知识跟实践相结合,有助于学生对机电一体化的理解,为以后进行工程项目设计打下坚实的基础。

【实验方式】

实验室老师先用十分钟复习本次实验的理论基础知识,然后讲解本次实验的操作顺序,以及这些顺序对应背后的理论依据,讲解中注意强调容易出现错误的地方,最后2-3人一组,开展实验。实验老师游走观察学生的实验情况。

【教学流程及学习效果】

当进行电气及自动化项目设计时,需要使用电气软件进行原理图设计,统计清单报表,完成端子排接线设计,完成二维或三维的布局图设计,完成接线图设计。在传统的Auto CAD中设计过程会出现很多问题,例如标准化程度低,经常出现错误,效率较低,需要耗费大量的时间进行人工统计。使用智能电气设计软件进行电气及自动化项目设计,可以规范图纸,实现标准化;自动统计所有清单报表,可以节约时间,提高效率;三维机柜布局和自动布线,可以精确进行柜内布局及计算线长。

电气原理图图纸一般由首页封面、图纸目录、总览布局图、原理路、物料清单、接线清单、电缆清单、端子排接线图、设备接线图、柜内布局图组成。

绘制给出的原理图图纸,在elecworks中完成原理图绘制后,进行三维集成布局及布线。

实验过程:

(1)创建项目

 

图 创建项目

(2)绘制原理图

① 在新建的项目中打开原理图图纸。

② 按照已给出的图纸绘制主回路。

 

图  主回路原理图

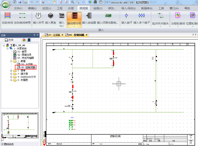
③ 按照已给出的图纸绘制控制回路。

 

图  控制回路原理图

(3)生成报表图纸

① 生成报表清单。包含物料清单、接线清单,图纸目录及电缆清单。

 

图  生成报表清单

② 生成端子排图纸。

 

图  生成端子排图纸

(4)进行三维机柜布局及布线

① 进行三维布局

 

图  机柜布局

② 进行三维布线

 

图  机柜布线